气力输送依据颗粒在运送管道中的密布程度分类
气力输送是使用气流的能量,在密闭管道内沿气流方向运送颗粒状物料,是流态化技能的一种具体应用。气力输送设备的结构简略,操作便利,可作水平的、笔直的或歪斜方向的运送,在运送进程中还可一起进行物料的加热、冷却、枯燥和气流分级等物理操作或某些化学操作。
气力输送的首要特点是运送量大,运送间隔长,运送速度较高;能在一处装料,然后在多处卸料。依据颗粒在运送管道中的密布程度,气力输送分为:
1、稀相运送:固体含量低于1-10kg/m3,操作气速较高(约18~30m/s),运送间隔基本上在300m 以内。现老练设备料封泵来说,运送操作简略无机械滚动部件,运送压力低,无修理、免保护!

2、密相运送:固体含量10-30kg/m3或固气比大于25的运送进程。操作气速较低,用较高的气压压送。 现老练设备仓泵,运送间隔达到500m 以上,适合较远间隔运送,但此设备阀门较多,气动、电动设备多。运送压力高,一切管道需用耐磨材料。
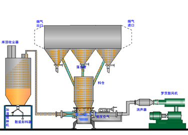
气力输送设备归于密相中压气力输送,适用于不易破碎颗粒、粉料物料的运送。气力输送广泛应用于铸造、化工、医药、粮食的职业。
山东天明环保科技有限公司是一家集科研、生产、销售、技术服务为一体的企业。公司主要承接: 脱硫脱硝系统工程, 粉、粒物料的气力输送系统,我们会以“一流的品质、一流的技术、一流的服务、一流的信誉”期待着与您的真诚合作!
上一篇:气力输送设备的堵塞问题
下一篇:气力输送设备,罗茨风机节能减耗

Copyright ©山东天明环保科技有限公司 版权所有